マンション ダイアパレスグランデージ味噌天神

  • #中古マンション
  • #熊本市中央区大江本町
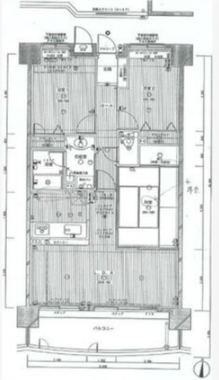
  • 熊本市中央区大江本町、マンションの間取り画像です

    【間取り】

    所在地
    熊本市中央区大江本町
    1,980万円
    70.85m² 3LDK

    物件概要

    交通

    バス停九州学院前 まで 徒歩3分

    専有面積
    壁芯 70.85㎡
    バルコニー面積
    12.30㎡
    バルコニー方向
    所在階/階数
    6階/11階
    築年数
    1998年 (平成10) 6月
    築27年
    建ぺい率
    容積率
    土地権利
    所有権
    構造および階数
    RC(鉄筋コンクリート) 造 地上11階建
    総戸数
    小学校区
    大江
    中学校区
    白川
    地目
    現況
    居住中
    引渡時期
    相談
    駐車場
    空有
    駐車場月額
    9,500円/月
    管理形態
    全部委託
    管理方式
    管理人日勤
    管理会社
    株式会社東急コミュニティー
    管理費
    5,670円
    修繕積立費
    17,710円
    上水道
    下水道
    ガス
    都市計画
    用途地域
    2種住居
    設備・条件
    備考
    取引態様
    仲介
    周辺地図を確認する

    (弊社管理番号: 5001220)

    【更新日】2026年03月26日

    【次回更新日】2026年04月26日

    その他周辺物件

    最近チェックした物件

    会社紹介 Company

    この物件は24人の方が
    興味を持っています

    熊本市東区・中央区・南区不動産情報

    HPを見たと言ってお気軽にお問い合わせください

    無料相談・お電話窓口

    096-245-9620
    営業時間:9:00〜18:00 定休日:火・水・GW・お盆・年末年始