マンション アンピール五福

  • #中古マンション
  • #熊本市中央区米屋町
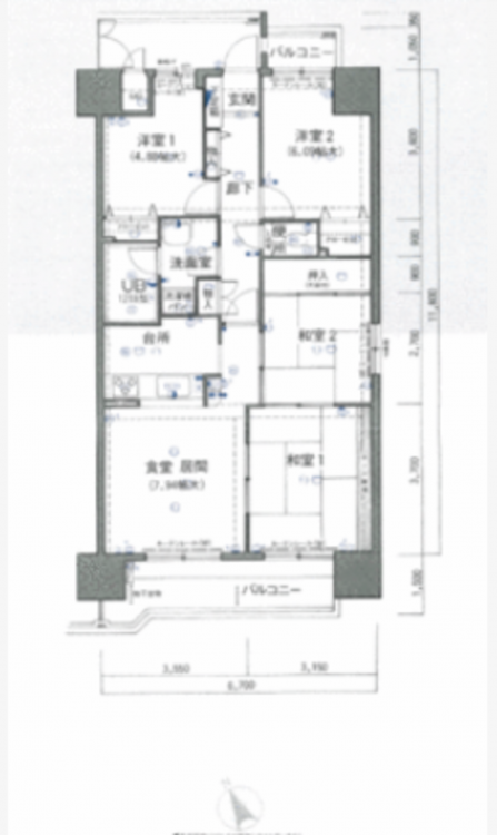
  • 熊本市中央区米屋町、マンションの間取り画像です

    【間取り】

    所在地
    熊本市中央区米屋町2丁目
    1,890万円
    77.86m² 3LDK

    物件概要

    交通

    熊本市電(田崎・熊本駅行き) 呉服町駅 バス停商工会議所前 まで 徒歩2分

    専有面積
    壁芯 77.86㎡
    バルコニー面積
    10.94㎡
    バルコニー方向
    所在階/階数
    6階/13階
    築年数
    1989年 (平成元) 8月
    築36年
    建ぺい率
    容積率
    土地権利
    所有権
    構造および階数
    SRC(鉄骨鉄筋コンクリート) 造 地上13階建
    総戸数
    91戸
    小学校区
    五福
    中学校区
    藤園
    地目
    現況
    居住中
    引渡時期
    予定
    駐車場
    空無
    駐車場月額
    管理形態
    全部委託
    管理方式
    管理人日勤
    管理会社
    管理費
    10,440円
    修繕積立費
    8,470円
    上水道
    下水道
    ガス
    都市計画
    用途地域
    商業
    設備・条件
    備考
    取引態様
    仲介
    周辺地図を確認する

    (弊社管理番号: 5001147)

    【更新日】2026年01月18日

    【次回更新日】2026年04月18日

    その他周辺物件

    最近チェックした物件

    会社紹介 Company

    この物件は39人の方が
    興味を持っています

    熊本市東区・中央区・南区不動産情報

    HPを見たと言ってお気軽にお問い合わせください

    無料相談・お電話窓口

    096-245-9620
    営業時間:9:00〜18:00 定休日:火・水・GW・お盆・年末年始