新築一戸建て 熊本市南区八分字町

  • #新築一戸建て
  • #熊本市南区八分字町
  • 1/2
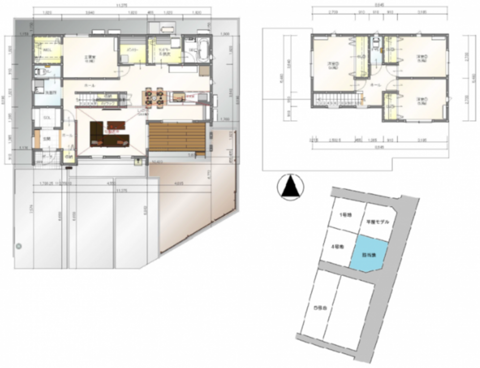
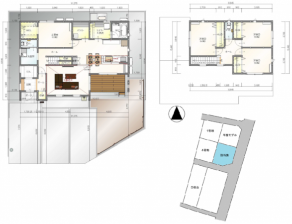
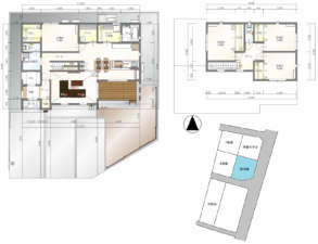
    熊本市南区八分字町、新築一戸建ての間取り画像です

    【間取り】

    熊本市南区八分字町、新築一戸建ての画像です
    熊本市南区八分字町、新築一戸建ての間取り画像です
    熊本市南区八分字町、新築一戸建ての画像です
    熊本市南区八分字町、新築一戸建ての間取り画像です
    所在地
    熊本市南区八分字町
    3,780万円
    36.69坪 4LDK

    物件概要

    交通

    JR鹿児島本線 まで 徒歩39分

    接道状況
    南側
    土地面積
    217.90㎡ (65.91坪)
    建物面積
    121.31㎡ (36.69坪)
    築年数
    2025年 (令和7) 12月
    建ぺい率
    50%
    容積率
    80%
    土地権利
    所有権
    構造および階数
    木造
    小学校区
    飽田東
    中学校区
    飽田
    私道負担
    地目
    現況
    引渡時期
    駐車場
    上水道
    下水道
    ガス
    都市計画
    市街化調整区域
    用途地域
    設備・条件
    備考
    取引態様
    仲介
    周辺地図を確認する

    (弊社管理番号: 3001867)

    【更新日】2025年11月23日

    【次回更新日】2026年02月23日

    その他周辺物件

    最近チェックした物件

    会社紹介 Company

    この物件は15人の方が
    興味を持っています

    熊本市東区・中央区・南区不動産情報

    HPを見たと言ってお気軽にお問い合わせください

    無料相談・お電話窓口

    096-245-9620
    営業時間:9:00〜18:00 定休日:火・水・GW・お盆・年末年始