新築一戸建て 熊本市南区野田2丁目2号棟

  • #新築一戸建て
  • #熊本市南区野田
  • 1/3
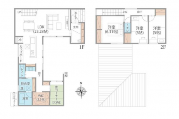
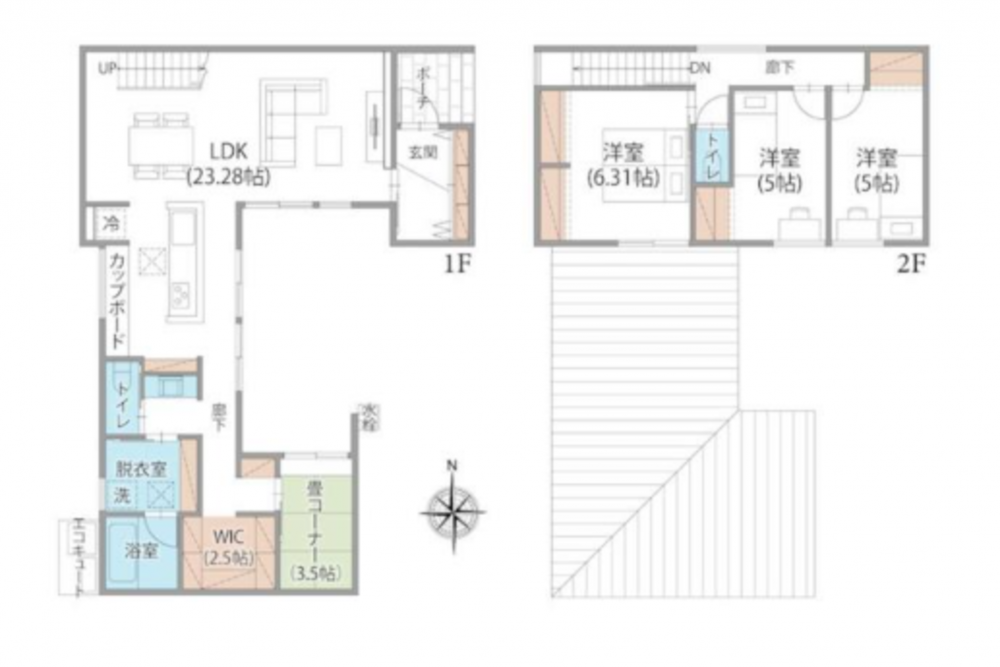
    熊本市南区野田、新築一戸建ての間取り画像です

    【間取り】

    熊本市南区野田、新築一戸建ての画像です
    熊本市南区野田、新築一戸建ての間取り画像です
    熊本市南区野田、新築一戸建ての画像です
    熊本市南区野田、新築一戸建ての画像です
    熊本市南区野田、新築一戸建ての間取り画像です
    熊本市南区野田、新築一戸建ての画像です
    所在地
    熊本市南区野田2丁目2号棟
    4,380万円
    33.31坪 3LDK

    物件概要

    交通

    JR鹿児島本線 まで 徒歩21分

    接道状況
    土地面積
    191.56㎡ (57.94坪)
    建物面積
    110.13㎡ (33.31坪)
    築年数
    2025年 (令和7) 9月
    建ぺい率
    容積率
    土地権利
    構造および階数
    木造
    小学校区
    川尻
    中学校区
    城南
    私道負担
    地目
    現況
    引渡時期
    駐車場
    上水道
    下水道
    ガス
    都市計画
    用途地域
    1種住居
    設備・条件
    備考
    取引態様
    仲介
    周辺地図を確認する

    (弊社管理番号: 3001790)

    【更新日】2025年10月26日

    【次回更新日】2025年12月26日

    その他周辺物件

    最近チェックした物件

    会社紹介 Company

    この物件は20人の方が
    興味を持っています

    熊本市東区・中央区・南区不動産情報

    HPを見たと言ってお気軽にお問い合わせください

    無料相談・お電話窓口

    096-245-9620
    営業時間:9:00〜18:00 定休日:火・水・GW・お盆・年末年始