新築一戸建て 熊本市東区御領5丁目8号棟

  • #新築一戸建て
  • #熊本市東区御領
  • 1/5
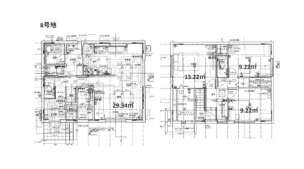
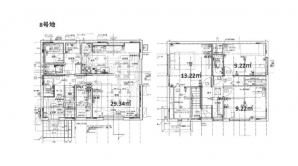
    熊本市東区御領、新築一戸建ての間取り画像です

    【間取り】

    熊本市東区御領、新築一戸建ての画像です
    熊本市東区御領、新築一戸建ての間取り画像です
    熊本市東区御領、新築一戸建ての画像です
    熊本市東区御領、新築一戸建ての画像です
    熊本市東区御領、新築一戸建ての画像です
    熊本市東区御領、新築一戸建ての画像です
    熊本市東区御領、新築一戸建ての間取り画像です
    熊本市東区御領、新築一戸建ての画像です
    熊本市東区御領、新築一戸建ての画像です
    熊本市東区御領、新築一戸建ての画像です
    所在地
    熊本市東区御領5丁目8号棟
    6,200万円
    33.16坪 3LDK

    物件概要

    交通

    JR豊肥本線 竜田口駅 まで 徒歩42分

    接道状況
    西側 公道5m 間口約6.1m
    土地面積
    公簿 220.79㎡ (66.78坪)
    建物面積
    109.64㎡ (33.16坪)
    築年数
    2025年 (令和7) 3月
    建ぺい率
    60%
    容積率
    150%
    土地権利
    所有権
    構造および階数
    軽量鉄骨造 地上2階建
    小学校区
    託麻西
    中学校区
    東部
    私道負担
    地目
    宅地
    現況
    引渡時期
    即時
    駐車場
    上水道
    下水道
    ガス
    都市計画
    市街化区域
    用途地域
    2種中高
    設備・条件
    備考
    取引態様
    仲介
    周辺地図を確認する

    (弊社管理番号: 3001419)

    【更新日】2025年08月03日

    【次回更新日】2025年12月03日

    その他周辺物件

    最近チェックした物件

    会社紹介 Company

    この物件は10人の方が
    興味を持っています

    熊本市東区・中央区・南区不動産情報

    HPを見たと言ってお気軽にお問い合わせください

    無料相談・お電話窓口

    096-245-9620
    営業時間:9:00〜18:00 定休日:火・水・GW・お盆・年末年始